Mackinac
Perfect for a pie shaped or cul-de-sac lot. This modern house plan features a golf simulator room, a large covered balcony, Master suite with fireplace in the bedroom and in the bathroom. Lots of great views from many of the highly used rooms.
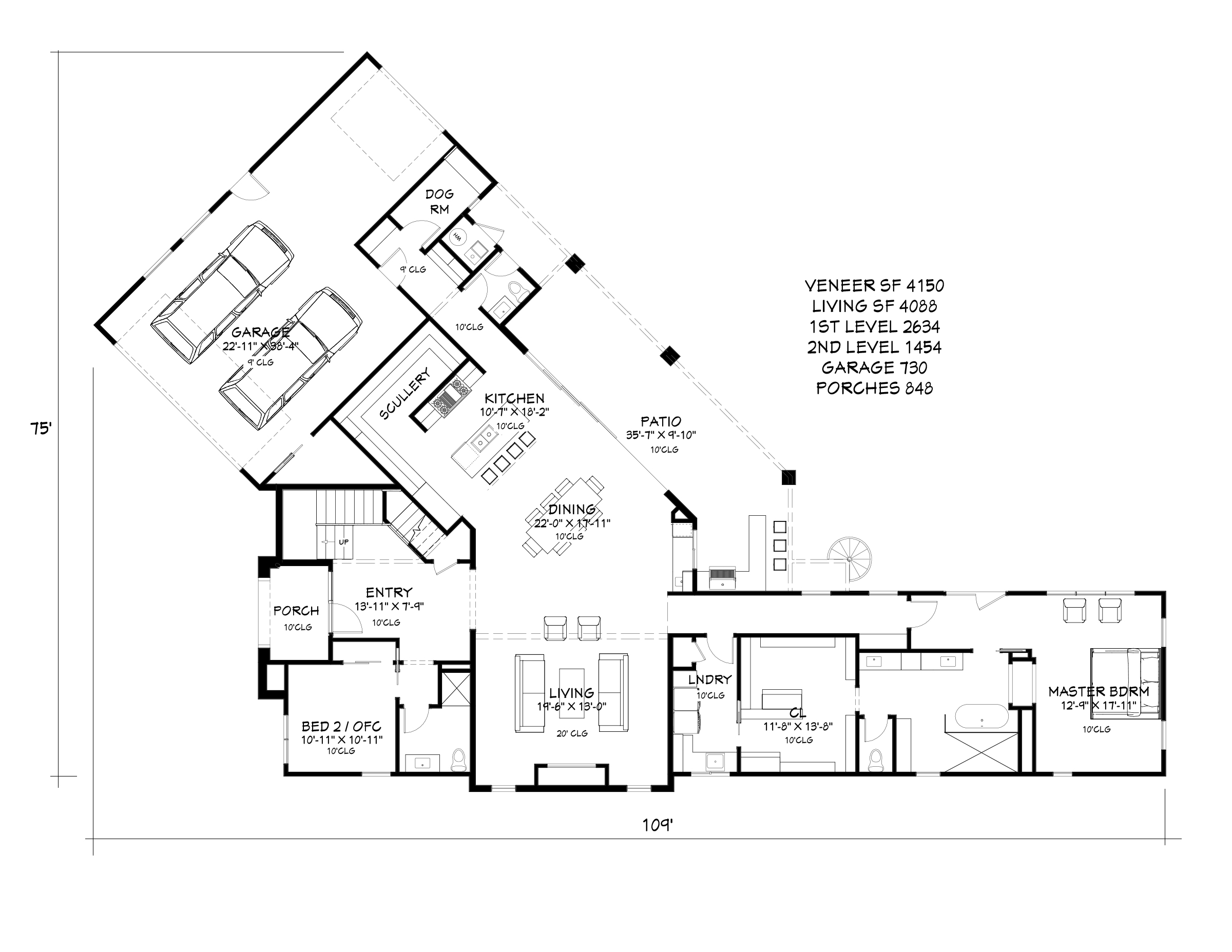
Floor Plans- Click links below to view:
Right Reading Reverse Set (No Additional Charge)
Add your plan to your shopping cart. When in Checkout, click "add a note" and request reverse set along with your email address.
Specs
Bedrooms
4 Bathrooms 4 Garage 3 car tandem Width 50' w at front w/ 45 degree increasing angle Depth 92'-109' Ridge Ht 29'-8" Roof 6:12 upper; 4:12 lower Veneer sf 4150 1st Floor sf 2634 2nd Floor sf 1454
$1,868.00Price
